RENOVATION ET AGRANDISSEMENTS MULTIPLES D’UNE VILLA
Maître d’Ouvrage : Privé
Statut : Livré en 2024
Mission : Mandat d’architecte complet
Durabilité : pompe à chaleur géothermique, réfection et amélioration de l’enveloppe énergétique du bâtiment
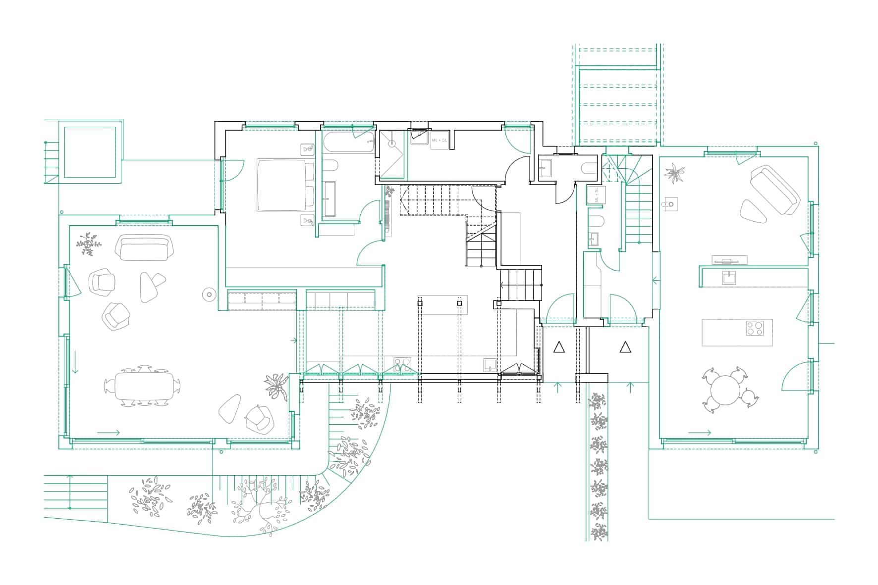
Cette villa unifamiliale se composait initialement d’un séjour/cuisine, de 3 chambres avec 2 salles de douche ainsi que d’un garage attenant.
La villa a été scindée au niveau du garage et agrandie de part et d’autre pour créer un deuxième logement. Le nouveau volume de la villa principale se trouve quelques marches en contrebas de l’existant. Il se déhanche, en plan et en coupe, pour créer une poche comprenant la zone de vie largement ouverte sur l’extérieur. A l’étage, deux nouvelles chambres sont créées. Elles sont accessibles depuis un espace jeux, ouvert sur la double hauteur de la cuisine conservée. De l’autre côté, le nouveau logement se détache également de l’existant. Le hall d’entrée se trouve dans l’ancien espace bureau et donne accès quelques marches plus bas à une zone de vie bénéficiant d’une belle hauteur sous plafond.
La rénovation était également l’occasion de revoir l’ensemble de l’enveloppe thermique et remplacer la production de chaleur mazout par une pompe à chaleur géothermique.
Crédit photo : Gentian Kadrijaj
























